Ref. 1530. Ruben Montejo Agencia Inmobiliaria le ofrece tres exclusivos apartamentos de obra nueva con licencia de vivienda en una ubicación inmejorable, en Calle Guerrilleros, junto a Los Ovalle y Avenida de Portugal.
Viviendas actualmente en proceso de reforma integral, con la posibilidad de personalizar la distribución según sus necesidades, creando un espacio único y a medida.
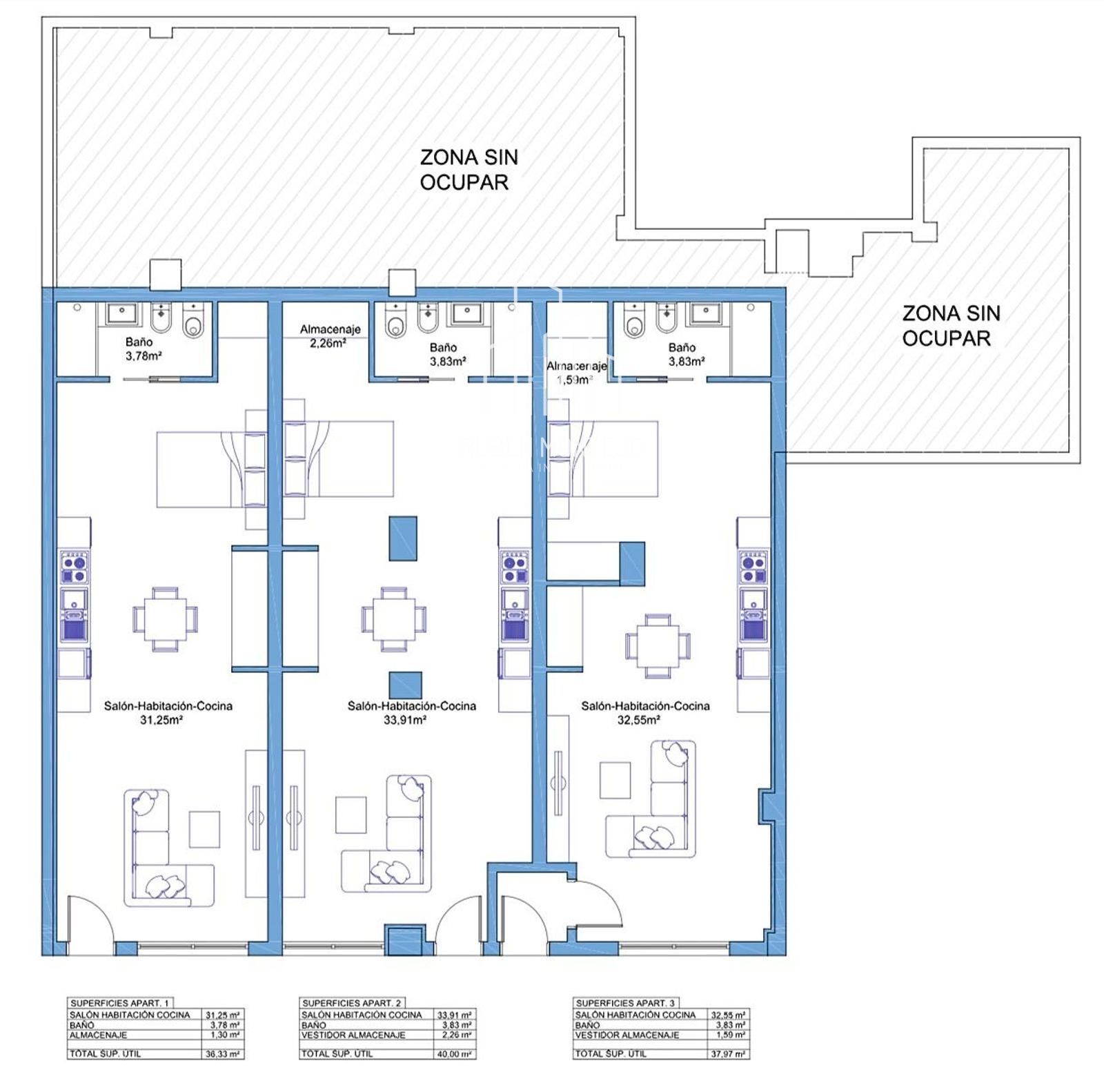
Cada apartamento cuenta con aproximadamente 50 m² construidos y 40 m² útiles, distribuidos en:
- Amplio espacio diáfano de salón-cocina-dormitorio de 34 m², moderno, luminoso y funcional
- Baño independiente con plato de ducha
Inmuebles exteriores, con orientación Este y grandes ventanales, lo que garantiza una excelente entrada de luz natural durante gran parte del día.
Diseñados bajo un concepto actual que combina estética y confort, con materiales de primera calidad:
- Instalación eléctrica completamente renovada con iluminación LED de bajo consumo
- Tuberías nuevas
- Pintura lisa en toda la vivienda
- Ventanas de PVC con rotura de puente térmico y doble acristalamiento tipo Climalit
- Suelos de tarima AC5 de alta resistencia
- Puertas interiores lacadas en blanco
- Baño equipado con grifería moderna y duchón
- Sistema de climatización mediante bomba de aire frío-calor
- Termo eléctrico para agua caliente sanitaria
- Armario ropero incluido
Las imágenes y vídeo mostrados corresponden a infografías de otros proyectos del mismo constructor, incluidas a modo orientativo para apreciar calidades y acabados, sin carácter contractual.
Edificio con muy bajos gastos de comunidad.
📍 Ubicación privilegiada:
A escasos metros de Avenida de Portugal y María Auxiliadora
Centro histórico a menos de 10 minutos caminando
Excelente conexión con transporte público
Estación de tren a pocos minutos
Rodeado de comercios, supermercados, farmacias, entidades bancarias y zonas de ocio
Una oportunidad ideal tanto como vivienda habitual como para inversión, en una zona consolidada con alta demanda.
Las imágenes mostradas corresponden a infografías a escala de la vivienda, incluidas a modo meramente informativo y orientativo sobre la posible distribución, sin carácter contractual.
El precio indicado de la vivienda no incluye gastos de notaría, registro ni Impuesto de Transmisiones Patrimoniales. No cobramos honorarios de inmobiliaria al comprador.
¡Contáctanos hoy mismo para visitar este u otros inmuebles!
En Ruben Montejo Agencia Inmobiliaria "Tus sueños tienen una dirección".